Xác định chiều cao lắp đặt lavabo tiêu chuẩn cho phòng tắm
Việc xác định chiều cao lắp đặt lavabo tiêu chuẩn là bước quan trọng không thể bỏ qua trong quá trình hoàn thiện phòng tắm. Một thiết kế đúng chuẩn không chỉ mang lại sự tiện nghi, thoải mái cho người sử dụng mà còn giúp tổng thể không gian trở nên hài hòa, thẩm mỹ hơn. Đặc biệt, với nhiều loại lavabo khác nhau hiện nay, lựa chọn đúng chiều cao phù hợp còn giúp tiết kiệm chi phí và tránh những sai sót không đáng có khi thi công.
Tại sao cần xác định đúng chiều cao lavabo khi lắp đặt?
Việc xác định chính xác chiều cao lắp đặt lavabo là yếu tố quan trọng giúp tối ưu trải nghiệm sử dụng và đảm bảo tính thẩm mỹ cho không gian phòng tắm. Cụ thể:

- Hỗ trợ lựa chọn thiết bị phù hợp, tạo sự cân đối với tổng thể không gian và nội thất phòng vệ sinh.
- Quy trình lắp đặt dễ dàng hơn, tiết kiệm thời gian mà vẫn đảm bảo tính thẩm mỹ, kỹ thuật.
- Phù hợp với đa dạng mẫu mã lavabo hiện có trên thị trường như lavabo đặt bàn, treo tường, âm bàn…
Tối ưu hóa lựa chọn lavabo để bàn, đảm bảo thông số chiều cao tương thích với thiết kế nhà tắm. - Giảm thiểu rủi ro đổi trả thiết bị, giúp tiết kiệm chi phí và tránh phát sinh trong quá trình thi công.
Hướng dẫn xác định chiều cao lắp đặt lavabo tiêu chuẩn phù hợp cho từng không gian phòng tắm
Việc xác định chiều cao lắp đặt lavabo không chỉ là yếu tố kỹ thuật mà còn ảnh hưởng trực tiếp đến sự tiện nghi và trải nghiệm người dùng. Tùy theo diện tích, bố cục và phong cách thiết kế của từng phòng tắm, bạn cần có cách tính toán chiều cao lắp đặt hợp lý để đảm bảo tối ưu công năng và tính thẩm mỹ. Dưới đây là hướng dẫn cụ thể theo từng loại lavabo:
Dựa vào diện tích và bố cục phòng tắm
Mỗi thiết kế nhà tắm đều mang đặc điểm riêng, có thể nhỏ gọn hoặc rộng rãi, cổ điển hay hiện đại. Vì vậy, việc chọn chiều cao lavabo cần đồng bộ với không gian chung để đảm bảo sự hài hòa và tiện dụng trong sinh hoạt hằng ngày. Dưới đây là chiều cao lắp đặt chuẩn theo từng loại lavabo:
- Lavabo trụ đứng: Phù hợp với nhà tắm nhỏ. Phần chân trụ giúp che ống cấp nước, tạo cảm giác gọn gàng. Chiều cao lắp đặt thường khoảng 800–825mm.

- Lavabo gắn tủ: Mang phong cách sang trọng, phù hợp với nhà phố, biệt thự. Chiều cao từ sàn đến đáy chậu 700–1000mm, chân tủ nên cách mặt đất 100–200mm.
- Lavabo âm bàn: Phù hợp với không gian nhỏ, tối ưu diện tích và phù hợp phong cách phẳng, hiện đại. Chiều cao phổ biến là 850–900mm.

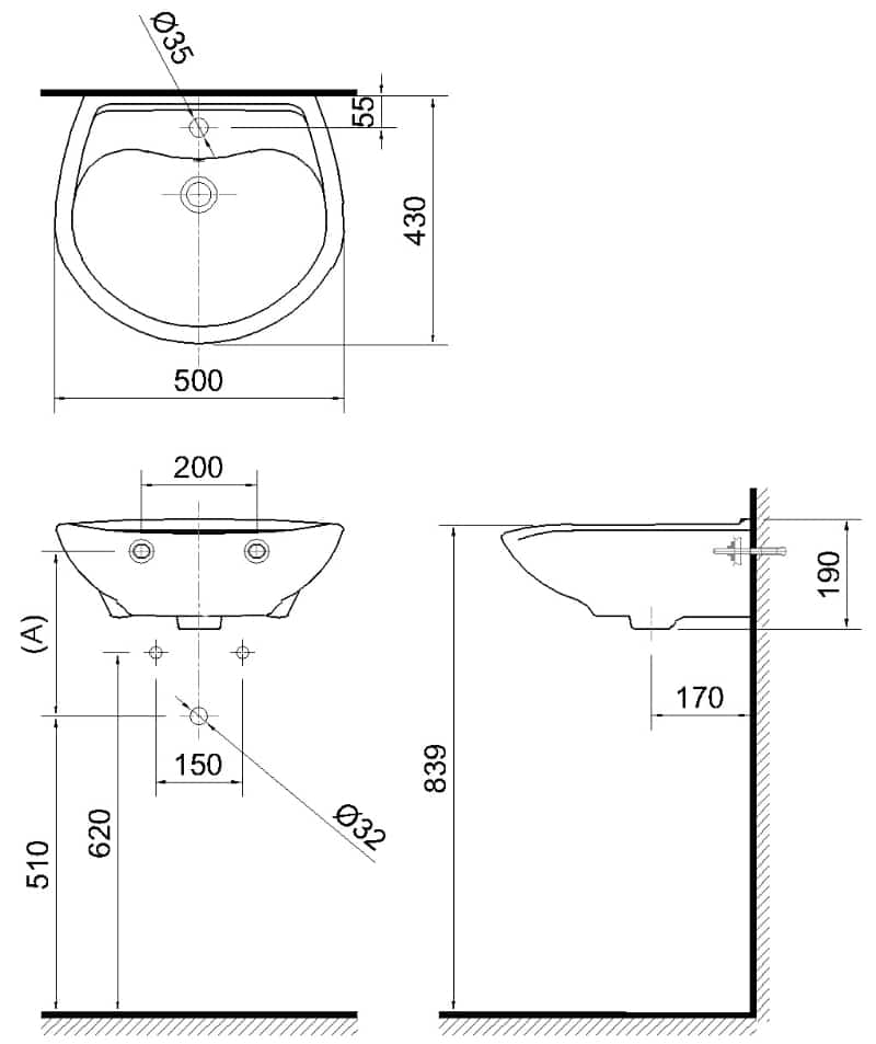
- Lavabo đặt bàn: Thường sử dụng trong phòng tắm lớn, giúp tăng tính đẳng cấp. Chiều cao chuẩn từ mặt sàn lên miệng lavabo từ 700–850mm.

- Lavabo treo tường: Tiết kiệm diện tích, phù hợp phòng tắm nhỏ. Chiều cao đề xuất từ 700–850mm, dễ lắp đặt và phù hợp nhiều đối tượng sử dụng.

Chiều cao lavabo theo từng nhóm người sử dụng
Để đảm bảo sự thoải mái và tiện lợi khi sử dụng, việc lựa chọn chiều cao lavabo nên được cân nhắc dựa trên đối tượng sử dụng chính trong gia đình. Dưới đây là gợi ý chiều cao phù hợp theo từng nhóm:

- Người lớn: Với những người có chiều cao trên 1,75m, lavabo nên được lắp đặt ở độ cao khoảng 850–900mm tính từ mặt sàn để thuận tiện sử dụng. Ngược lại, với những người thấp hơn mức này, chiều cao khoảng 800mm sẽ là lựa chọn hợp lý, đảm bảo thao tác dễ dàng và không gây mỏi lưng khi sử dụng.
- Trẻ em: Đối với trẻ nhỏ, lavabo nên được lắp ở độ cao từ 500–600mm để trẻ có thể tự sử dụng vòi nước, rửa mặt mà không cần sự trợ giúp quá nhiều từ người lớn.
- Người cao tuổi và người khuyết tật: Với nhóm người gặp hạn chế trong việc di chuyển hoặc cúi gập người, chiều cao lý tưởng của lavabo là khoảng 360mm, giúp họ dễ tiếp cận và sử dụng mà không gây áp lực lên cơ thể.
Những điều cần lưu ý khi chọn và lắp đặt lavabo đúng chiều cao
Để đảm bảo độ bền của lavabo cũng như tránh các sự cố không mong muốn trong quá trình sử dụng, bạn cần lưu ý một số điểm quan trọng dưới đây khi lắp đặt thiết bị này:

- Trước khi lắp đặt: Hãy ưu tiên lựa chọn lavabo từ các thương hiệu uy tín, đồng thời xác định kiểu dáng và kích thước phù hợp với thiết kế tổng thể của phòng tắm. Trước khi thi công, cần xác định vị trí lắp đặt chính xác, tiến hành đo đạc chiều cao, kiểm tra độ bằng phẳng của bề mặt tường và sàn. Đừng quên vệ sinh sạch sẽ khu vực lắp đặt và chuẩn bị đầy đủ phụ kiện như vòi nước, dây cấp, keo chuyên dụng… để tránh thiếu sót khi thi công.
- Trong quá trình lắp đặt: Sau khi xác định được chiều cao hợp lý, hãy trang bị đầy đủ dụng cụ và đồ bảo hộ. Thực hiện theo đúng hướng dẫn kỹ thuật của nhà sản xuất. Quá trình thao tác nên cẩn trọng để tránh va đập làm trầy xước hoặc nứt vỡ lavabo.
- Sau khi hoàn tất lắp đặt: Kiểm tra kỹ các khớp nối, đường cấp – thoát nước và hệ thống ốc vít để đảm bảo không có hiện tượng rò rỉ. Trong quá trình sử dụng, bạn nên vệ sinh định kỳ và tránh đặt vật nặng lên lavabo để duy trì độ bền và tính thẩm mỹ lâu dài cho thiết bị.
Hy vọng những thông tin trên đã giúp bạn nắm rõ cách xác định chiều cao lắp đặt lavabo sao cho phù hợp và hiệu quả nhất. Nếu bạn đang tìm kiếm lavabo chính hãng, bồn tắm đá, phòng xông hơi, bồn tắm massage, sen âm tường,… đừng ngần ngại liên hệ Daros qua hotline: 1900 88 68 29 để được tư vấn chi tiết và hỗ trợ miễn phí.

Tôi là Hoàng Minh Tâm, Giám đốc Công ty TNHH DAROS VIỆT NAM, chuyên nghiên cứu và cung cấp các sản phẩm cao cấp trong lĩnh vực nội thất phòng tắm và spa, đặc biệt là phòng xông hơi, bồn tắm massage và sen âm tường. Với niềm đam mê và tầm nhìn sâu rộng về thẩm mỹ nghệ thuật, chúng tôi cam kết mang đến cho khách hàng những trải nghiệm tuyệt vời nhất trong không gian sống của họ.




















